Park Slope Romanesque Revival

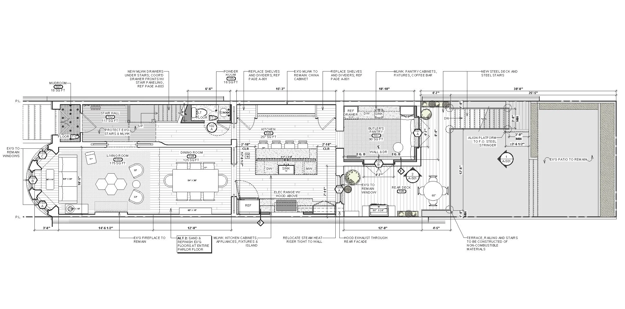
This Romanesque Revival rowhouse received a focused interior renovation that preserved its historic character while introducing clear, contemporary upgrades. Existing trim work, window casings, and architraves were restored to maintain the strength of the original architectural language. New custom millwork was added throughout the home, designed to echo the scale and proportion of the historic detailing without replicating it. The intent was to create a cohesive interior framework where old and new reinforce one another.

Material clarity drives the redesign. Natural stone anchors the kitchen and bar areas, paired with warm toned cabinetry and brass hardware that will develop a patina over time. Soft, integrated lighting highlights textures and architectural edges, giving the rooms depth without overpowering them. The kitchen was relocated to the former dining room, allowing that space to become a dedicated butler’s pantry. On the opposite side, new French doors connect the a newly created deck, extending the living space outdoors and linking daily activity with a larger entertaining area.

Building Information

Location: Park Slope Historic District

Originally Built: 1898

Status: Completed 2025

Credits

Architect: HA Architecture Studio

Interior Designer: Jonathan Winslow Design

General Contractor: Elite Tech Renovations 

Photographer: HA Architecture Studio

Previous
Previous

Kamalame Cay Bungalow

Next
Next

Neo-Eclectic Modernism